티스토리 뷰

오랜만에 서울 구로구에서 개봉5구역 호반 써밋 개봉 아파트를 분양을 합니다. 요즘 물가상승으로 인해 분양가가 계속 상승하는데 34평 기준 10억 되지 않는 가격으로 분양가가 책정되어 많은 분들이 관심이 많은 것 같습니다. 이에 호반 써밋 개봉 아파트의 분양가, 입지, 평면도, 필요자금 등을 알아보고 청약해야 할지 말지 고민시는 분들에게 도움이 됐으면 합니다.
아파트 건설 주소는 구로구 개봉동 68-64번지이며, 지하3층 지상 24층 3개 동 총 371세대를 건설합니다. 일반분양 물량은 190세대이고 전용면적 49㎡(구 21평), 59㎡(구 24평), 84㎡(구 34평),114㎡ 타입을 분양합니다.



목차
호반 써밋 개봉 청약 일반
입주자 모집 공고
아래 링크를 다운받아 보시면 호반 써밋 개봉의 자세한 자료가 있습니다.
분양아파트 개봉 입주자 모집 공고 다운로드
분양아파트 개봉 입주자 카탈로그 다운로드
분양가 및 분양 세대수
청약 자격은 서울 수도권에 거주하는 성인이나 세대주인 미성년자 까지도 가능합니다.
| 주택형 | 분양가(만원) | 분양 세대수 |
| 49A | 58,730 | 15 |
| 59A | 75,110 | 41 |
| 59B | 77,130 | 32 |
| 84A | 97,900 | 41 |
| 84B | 99,350 | 42 |
| 84C | 97900 | 16 |
| 84P | 139,000 | 2 |
| 114P | 187,500 | 1 |
| 총 합계 | - | 190 |
청약 자격
청약 자격은 서울 수도권에 거주하는 성인이나 세대주인 미성년자 까지도 가능합니다.
|
청약조건
|
서울 및 수도권 거주하는 자
|
|
다주택자, 세대주, 세대원 모두 가능
|
|
|
예치금 기준 충족(청약통장 12개월 이상)
|
|
|
우선 공급
|
서울특별시 거주자 우선 공급
|
|
예치금 기준 (서울)
|
84m2 300만원, 114m2 1,000만원
|
|
예치금 기준 (인천)
|
84m2 250만원, 114m2 700만원
|
|
예치금 기준 (경기)
|
84m2 200만원, 114m2 400만원
|
청약 일정
청약 일정은 아래와 같으니 잊지 마시고 청약하세요.
|
입주자 모집 공고일
|
2023년 8월 25일
|
|
특별공급
|
2023년 9월 4일
|
|
일반공급
|
2023년 9월 5일 (1순위), 9월 6일 (2순위)
|
|
당첨자 발표
|
2023년 9월 13일
|
|
정당 계약
|
2023년 9월 25일~27일
|
|
입주 예정
|
2024년 12월 예정
|
청약 방법
청약홈 홈페이지에서 인터넷 신청
https://www.applyhome.co.kr/co/coa/selectMainView.do
www.applyhome.co.kr
호반 써밋 개봉 아파트 위치 및 입지
지하철역과의 거리
호반 써밋 개봉아파트는 지하철 1호선 오류동역에서 도보로 12분 정도 걸립니다. 남자 걸음으로 빨리 걷는 다면 6~7분 만에 도착할 수 있을 정도로 지하철과 가까운 위치에 있습니다.

호반 써밋 개봉아파트는 1호선 역세권으로 가산디지털단지, 여의도, 강남으로 출퇴근 하시는 분들에게 아주 좋은 아파트입니다. 신안산선이 개통되면 여의도까지 한 번만 갈아타고 갈 수 있는 곳입니다.
교통(자차 이용) 여건
호반 써밋 개봉아파트 옆으로 남부순환로 오류IC를 이용할 수 있으며, 거기서 조금만 이동하면 서해안 고속도로를 이용할 수 있는 서부 간선도로와 접하고 있습니다.

호반 써밋 개봉아파트는 자차를 이용하여 신도림, 여의도는 물론 인천 지역으로 이동하기에 우수한 교통 여건을 가지고 있습니다.
초등학교, 중학교와의 거리
호반 써밋 개봉아파트에 배정되는 초등학교는 오류초등학교 입니다.
도보로 약 8분정도 되는 거리입니다. 이 정도면 어린이 걸음으로 10분이면 충분히 갈 수 있는 거리입니다.

호반 써밋 개봉아파트에서 오류초등학교까지 가는 길이 순탄하진 않네요. 오르막, 내리막 좁은 도로가 좀 맘이 걸리긴 합니다.
딱 봐도 오르막이 보이네요.

개봉 중학교와의 거리는 아래와 같습니다.

중학생이 가기에는 그리 먼 거리는 아니네요. 특히 자전거를 타고 가면 5분 정도 걸리는 거리라 통학에는 문제없을 것 같습니다.
호반 써밋 개봉 아파트 주위 아파트와 시세 비교
호반 써밋 개봉 아파트 주위의 신축급 아파트는 남부순환로 건너편에 개봉 푸르지오입니다. 2014년 준공된 아파트로써 10년 차입니다.

개봉푸르지오의 84형(구 34평) 실거래가는 83,500만원이고 매물 호가는 92,000만원 정도입니다.
호반 써밋 푸르지오의 84형 분양가는 10억입니다. 최신식 아파트이고 초중학교 및 지하철에 더 근접되어 있으니 준공된 시세는 11억 정도 예상합니다. 그렇다면 청약 당첨되신 분들은 1억 정도 안전마진을 가지고 가시는 것 입니다.
호반 써밋 개봉 아파트 청약 필요자금
중도금 60% 이자 후불제 아파트라서 계약금 10%만 있으면 계약이 가능합니다.
| 주택형 | 계약금 10%(만원) |
| 49A | 5,873 |
| 59A | 7,511 |
| 59B | 7,713 |
| 84A | 9,790 |
| 84B | 9,935 |
| 84C | 9,790 |
| 84P | 13,900 |
| 114P | 18,750 |
호반 써밋 개봉 아파트 청약 할까요 말까요?
장점
- 중도금 60% 이자 후불제로 계약금만 있으면 계약이 가능함
- 전매제한 1년이고 거주의무가 없어서 내년 입주(2024년 12월) 시 프리미엄 받고 수익 창출 가능
- 1호선 오류역과 가까워서 서울 출퇴근하는 직장인에게 편리함을 제공하는 신축 아파트
단점
- 세대당 주차대수가 1대로 너무 작음, 주차난 예상
- 예상 시세 차익이 1억 정도 예상되나 시장상황에 따라 다르고 취등록세 포함하면 시세 차익은 거의 없는 수준
- 초등학교 거리는 가깝다고 볼 수 있으나 접근 도로가 정비되지 못함
- 371세대의 소규모 아파트로 관리비의 부담이 있을 것으로 예상
호반 써밋 개봉 아파트는 투자로써 접근하는 것보다 실거주 측면으로 1억 싸게 구매한다는 생각으로 청약하셔야 할 것 같습니다. 1억 정도 시세차익이 있을 것으로 보이지만 시장 상황에 따라 취등록세 포함하면 마이너스가 날 수도 있습니다.
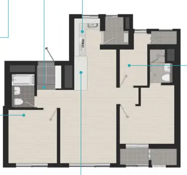
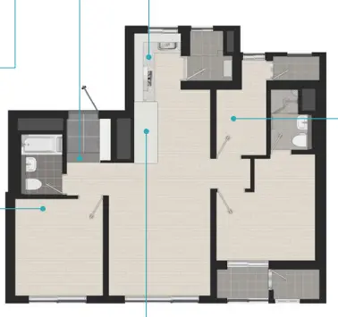
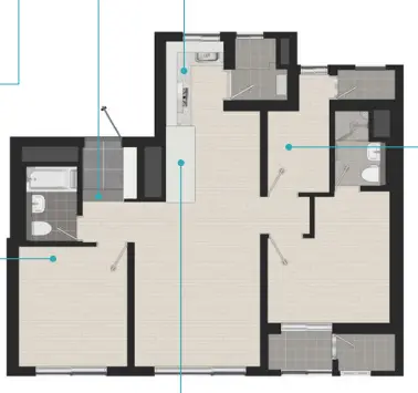
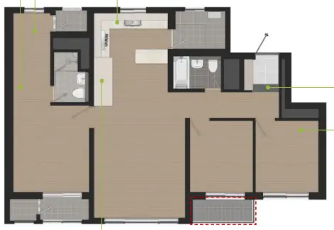
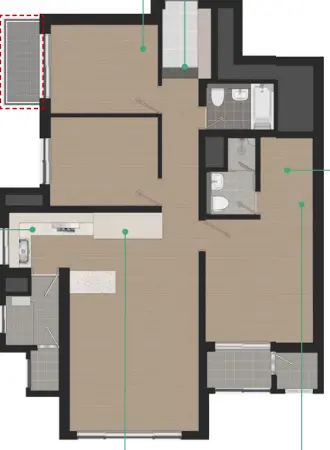
호반 써밋 개봉 아파트 평면 평가
- 호반 써밋 개봉 49 : 판상형 구조로 방두개에 화장실 하나로 이루어져 있으며 방 하나는 아기 방이나 드레스룸으로 사용 가능, 신혼부부에 적합
- 호반 써밋 개봉 59A : 판상형 구조로 방 세개에 화장실 두 개로 설계됨. 하지만 방 하나는 드레스룸 수준이고 방 두 개는 활용가능, 2~3인 가족에게 적합
- 호반 써밋 개봉 59B : 타워형 구조로 맞통풍이 불리함. 하지만 방 세개를 온전히 사용가능 한 크기로 설계



- 호반 써밋 개봉 84A : 판상형 구조로 방 세개에 화장실 두 개로 설계, 안방에 광활한 드레스룸, 작은방 두 개는 베란다를 확장할 수 없어 작을 것으로 예상
- 호반 써밋 개봉 84B/C : 타워형 구조로 방 세개를 골고루 넓게 사용가능, 맞통풍이 판상형에 비해 부족하지만 주방 창문을 통해 통풍 걱정은 없을 것으로 예상



호반 써밋 개봉 SNS 아파트 평가
전반적인 네이버 부동산 카페나 카카오톡 단톡방 평가 댓글은 의외로 분양가가 착하게 나왔다는 반응입니다. 보통 후분양의 경우는 매우 높게 나오는 게 일반적인데 주위 시세를 감안하여 책정한 것 같습니다. 1순위에서 완판이 되지 않겠지만 완판은 문제없다는 의견이 다수입니다.
호반 써밋 개봉 아파트 시설
신축아파트 답게 여러가지 커뮤니티 시설이 설계되어 주민들이 편하게 이용가능합니다.






호반 써밋 개봉 아파트 공식 홈페이지
호반써밋 개봉
호반써밋 개봉 | 공식 홈페이지 | 분양정보
www.hobansummit-gb.co.kr
호반 써밋 개봉 아파트 총평
아직 주위에 개발되지 않은 빌라지역이 많아서 주위 환경이 좋지 않은 것은 사실입니다.
하지만 서울 신축분양이 메말라 있는 지금 지하철 1호선 오류동역 역세권 신축 아파트 34평 분양가가 10억 이하라는 것은 분명 매력적인 가격대입니다. 현재 분양가는 1억 정도 안전마진을 가지고 있다고 생각되지만, 취등록세 등 부대 비용이 추가되면 투자처로써는 좀더 심사숙고하셔야 할 것 같고, 실거주 측면에서 접근하시기를 추천드립니다.
주의사항
- 투자 책임 : 본 포스팅은 개인적인 의견이니 투자의 책임은 투자자 본인에게 있음을 알려드립니다.
- 저작권 관련 : 본 포스팅을 무단복제 할 경우, 민형사상 책임과 계정정지 삭제의 불이익이 없도록 주의해 주시기 바랍니다.
관심있을 만한 글